Bharat Bhavan Bhopal Plan - It enjoys a significant place among the.
Original Resolution: 1489x1053 px
Priciples Of Charles Correa Vebuka Com - Reflecting the beauty of all that lies inside, the architecture of the bharat bhavan itself shines like a beautiful diamond overlooking the upper lake.
Original Resolution: 4647x3098 px
Bharat Bhavan Wikipedia - Bhopal, also known as the lakeside city, is a fairyland half hidden among seven high hills, nestling in rich foliage.
Original Resolution: 761x420 px
Charles Correa Archaeology Museum Archnet - Amont things to do in bhopal.
Original Resolution: 1536x960 px
Icons Designer Charles Correa Beautiful Homes - The sky is even incorporated into the interior spaces of the site, with concrete 'shells' atop the structure allowing light and air to pour in through their circular openings.
Original Resolution: 640x435 px
Bharat Bhavan Archnet - Bhopal has a rich history of art and culture.
Original Resolution: 1600x653 px
Destinations Of India Bharat Bhavan Bhopal Multi Cultural Centre - By , divya dheeraj harshith priyanka s.
Original Resolution: 638x479 px
Bharat Bhavan Bhopal - Swaminathan marg, shamla hills (near upper lake), bhopal, 462001, india.
Original Resolution: 1280x640 px
Bharat Bhavan Bhopal Entry Fee Timings History Images Location Entry Ticket Cost Price Bhopal Tourism 2021 - This unique place always has something on ever day and for sure every evening.
Original Resolution: 505x126 px
Bharat Bhavan - The complex includes an art gallery of indian painting and sculpture it has fully equipped workshops for printmaking.
Original Resolution: 640x435 px
Bharat Bhavan Archnet - Bharat bhavan bhopal, madhya pradesh, india completed project by charles correa associates for govt.
Original Resolution: 886x886 px
Bharat Bhavan Listed Amongst The Top 20 Most Visited Ad Architecture Classics By Archdaily Charles Correa Foundation - Amont things to do in bhopal.
Original Resolution: 640x480 px
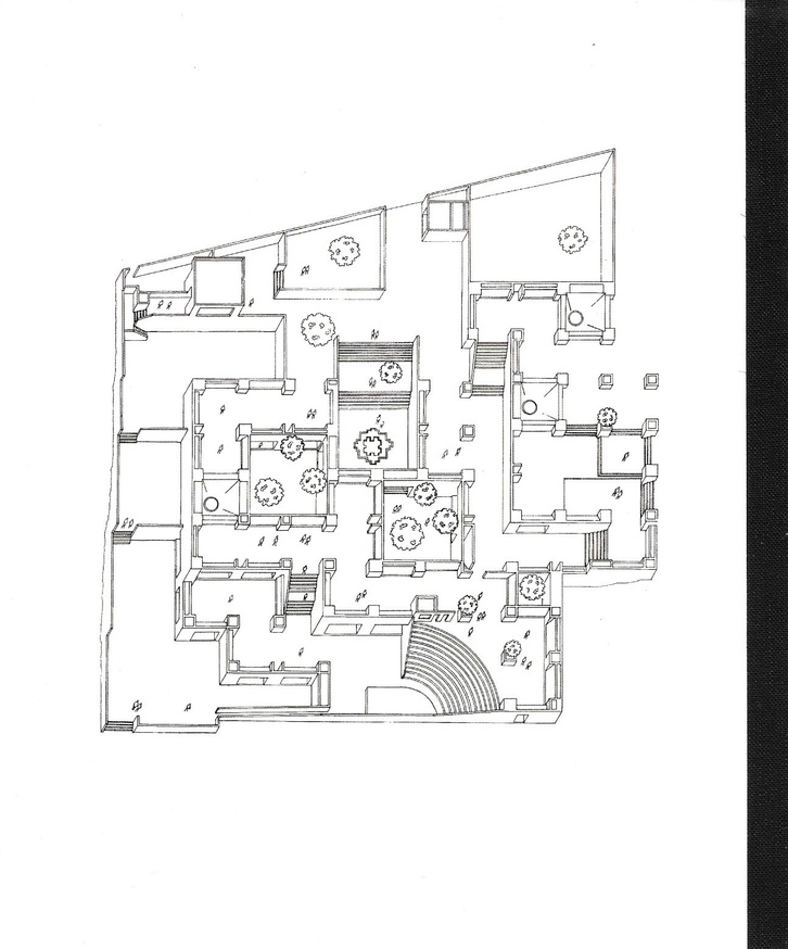
Bharat Bhavan Travel Guide Places To See Trodly - The bharat bhavan, bhopal has four distinct halls dedicated to different arts.
Original Resolution: 877x1000 px
Gallery Of Ad Classics Bharat Bhavan Charles Correa 36 Indian Architecture Modern Architectural Styles Architecture Model - The indoor theatre is called antrang while the outdoor theatre is known as the bahirang.
Original Resolution: 416x389 px
How Important Is Concept And Context For Architecture By Radha Hirpara Medium - Know about bharat bhavan in bhopal.
Original Resolution: 726x874 px
Pradeep Dalal Bhopal Mp Printed Matter - the auditorium has unique design made up of r.c.c.
Original Resolution: 4642x3095 px
Bharat Bhavan Wikipedia - Swaminathan marg, shamla hills (near upper lake), bhopal, 462001, india.
Original Resolution: 1144x783 px
Gallery Of Ad Classics Bharat Bhavan Charles Correa 29 - Bharat bhavan established and funded by thegovernment of madhya pradesh.
Original Resolution: 768x576 px
Bharat Bhavan Bhopal - Swaminathan marg, shamla hills, near upper lake, bhopal, madhya pradesh 462013, india.
Original Resolution: 235x176 px
30 Bharat Bhavan Ideas Bhopal House Styles Life Insurance Corporation - Other hotels near bharat bhavan, bhopal.